EVEREST E&C PTE LTD

Scaffolding Services

1. Tower Scaffold

A Scaffold with only one working platform at top most level and has only one bay on either side. It can be free standing or tied to the building or structure.





Project - 60 Meter Access Tower Scaffold Erection @ Shaft Cable Tunnel




Project - Access Tower Scaffold Erection at Launch Shaft T228 Gardens By The Bay Station & Tunnel




Project - T211 Bright Hill Station & Tunnels





2. Bird Cage Scaffold:

A Scaffold with only one working platform at top most level and has a configuration of two or more bays on either side. It can be free standing or tied to the building or structure.





Project - Scaffold Birdcage erection for Structure Design Paint Works @ITE AMK Central






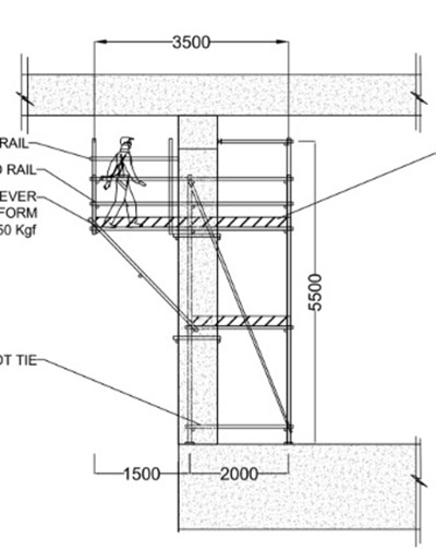
3. Cantilever Scaffold:

A Scaffold erected on a cantilever beam, tubes are used where it is unpractical to erect from the ground








4. Suspended Scaffold

A Scaffold hanging on GI Pipes, ropes or chain from an overhead structure. It is not capable of being moved or lowered.






Project - Erection of Suspended Scaffold @ The New State Courts Tower Building





5. Independent Tied Scaffold

A Scaffold with two rows of Vertical standards, one row supporting the External and one Internal Deck . The transom is not installed into the wall or It is free standing. It is being supported by building or Foundation Structures.





Project - Independent Scaffold Erection for Membrane Works @ Desalination Plant





6. Mobile Scaffold

A Scaffold with one layer of working platform at the top level with caster wheels attached at the base for short distance movement. Height varies and can be custom made to suit specific needs of your project requirement of recommended height >< 8 meters.








7. Access Tower Scaffold

Access stair towers have step ladders fixed to the side of the erected independent Scaffold. It can be erected in such a way that with the installed step ladders it leads all the way to the top, creating a single zigzag level platform.




8 Truss Out Scaffold

A support scaffold structure erected out and protruding through windows or similar openings on building structures where it may not be practical to erect from the ground. It is used for minor repairs on walls or for works on upper windows of tall structure buildings.




9. Form Work Support

Formwork support Scaffold solutions are catered for high-rise Heavy Slab casting in Infrastructure, Plant or Underground Tunnel with complex designs shapes for challenging conditions implemented in support for heavy weight force load concrete conditions.




10. Propping & Shoring Support

Shoring is a traditional type of formwork method used for casting of heavy slabs, to transfer beam loads.




11. Catch Platform Scaffold

Catch platforms are commonly erected beneath different floor levels underging maintenance or Construction Building in progress, overhead bridges that are under construction or repairs, its only purpose is a precautionary measure of an added safety measure to restrict catch falling objects or materials falling from the height falling to ground.



Project - CatchNet Scaffold installation @Paya Lebar Apartment Quarters





12. Shelter Scaffold

Temporary holding areas, storage, or Assembly points in the construction, Building or Civil Sectors, we are able to erect scaffold shelters of a sturdier kind. Strong and durable for years and serves as an additional quick fix and safety advantage from the usual conventional method of using layers of traditional plywood.




13. Perimeter Scaffold

It is a standalone structure that is unattached to the building. It is secured by drilling relevant supporting structures directly into the ground of the external facade. It only has a single level work platform. It is suitable for construction or demolition works of a building or structures that are not too tall.




14. Sales & Rental Material

We offer sales & rental options to our clients. We provide full range of access equipment for purchase or Rental






15. PE DESIGN & ENDORSEMENT

Requirement of the PE to Inspect and certify the scaffold is safe for use in any Scaffold erection that requires Inspection. Based on your required method of erection the proposed design is raised by the civil engineer and evaluated with the PE and his endorsement is crucial to ensuring the safe erection method is accepted and sustains the weight load.